PORTFOLIO
ART DIRECTION
INTERIOR DESIGN
About me
Contact
AM
PORTFOLIO
ART DIRECTION
INTERIOR DESIGN
About me
Contact
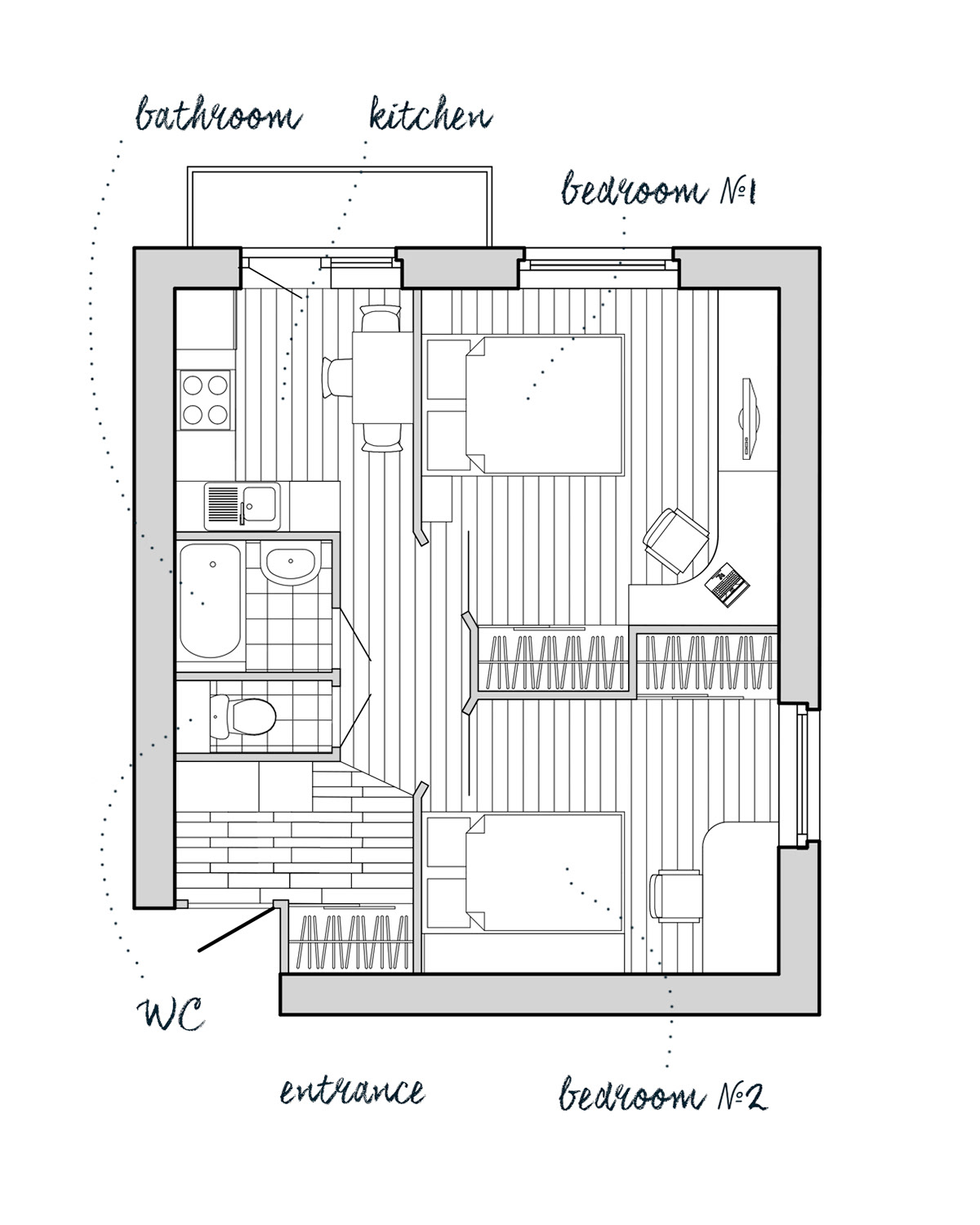
Apartment
total area 38 sq m
↑
Back to Top